Search

Leave a Message

By providing your contact information to Kristen Meleedy, your personal information will be processed in accordance with Kristen Meleedy's Privacy Policy. By checking the box(es) below, you consent to receive communications regarding your real estate inquiries and related marketing and promotional updates in the manner selected by you. For SMS text messages, message frequency varies. Message and data rates may apply. You may opt out of receiving further communications from Kristen Meleedy at any time. To opt out of receiving SMS text messages, reply STOP to unsubscribe.

Thank you for your message. I will be in touch with you shortly.

Explore My Properties

Property Description

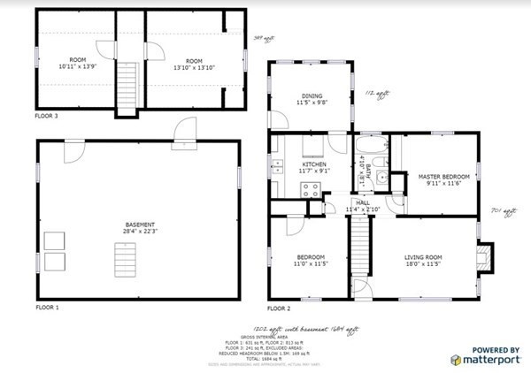
Cape in great West Quincy location with highway access to the expressway or 95 S. Larger lot with fruit and vegetable garden in backyard. Upgrades to the home since 2019 include bathroom upgrades, kitchen upgrades, solar panel, driveway, and new HVAC system.

Overview

Property Status
Sold
Lot Size
6,185 Sq.Ft.
MLS ID
73195176
Property Type
Residential
Year Built
1950

Features & Amenities

Total Area
1,080 Sq.Ft.
Architecture Styles
Cape
Water Source
Public
Parking
Paved Drive, Off Street, Tandem
Heat Type
Oil, Ductless
Air Conditioning
Ductless
Appliances
Range, Refrigerator, Freezer, Washer, Dryer
Sewer
Public Sewer
Substructure
Concrete Perimeter
Disability Features
No
Sales Price
$570,000
Real Estate Tax
$5,698/yr
Zoning
RESB

Downloads

257 West St

Schedule a Tour

I would love to help you see this beautiful home! As a full-service professional, I can help you tour. Please submit an offer, and answer questions about the buying process.

Thank you

for your interest in 257 West St, Quincy, MA 02169

257 West St
Navigate

I'm Interested In

257 West St

or
  • CallKristen Meleedy

    License #9041811

    774.406.6533
  • Browse Other

    Featured Properties

    • 109 Lester Road Active Under Contract

      $511,000

      109 Lester Road, Brockton, MA 02302

      • 4 Beds
      • 1 Bath
      • 1,032 Sq.Ft.
    • 47 North St For Sale

      $349,900

      47 North St, Warren, MA 01083

      • 4 Beds
      • 4 Baths
      • 2,556 Sq.Ft.
    • 29 Franklin St For Lease

      $10,000/mo

      29 Franklin St, Needham, MA 02494

      • 2 Baths
      • 3,635 Sq.Ft.
    View All Properties

    Follow Me On Instagram