Search

Leave a Message

By providing your contact information to Kristen Meleedy, your personal information will be processed in accordance with Kristen Meleedy's Privacy Policy. By checking the box(es) below, you consent to receive communications regarding your real estate inquiries and related marketing and promotional updates in the manner selected by you. For SMS text messages, message frequency varies. Message and data rates may apply. You may opt out of receiving further communications from Kristen Meleedy at any time. To opt out of receiving SMS text messages, reply STOP to unsubscribe.

Thank you for your message. I will be in touch with you shortly.

Explore My Properties

Property Description

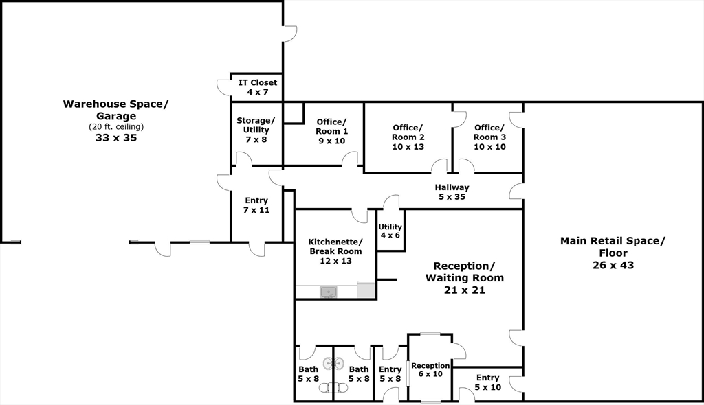
Desirable location with easy access to highway: Space was previously used as a Cannabis establishment. Enter through private front entrance including seating area and two bathrooms (see attached floor plan) The waiting area leads to the large open area with countertops desks. The hallway off this area leads to the kitchen & three private offices. Through this hallway it leads you to a common area with supply closet and opens to industrial size garage. Open for discussion to lease Garage separately from office area. Parking available directly outside of building: Sheraton Boston Needham: .06 Miles Needham Heights commuter rail 1.3 Miles: Zoning:Commercial activities like equipment rental and accessory retail sales, and potentially other uses such as veterinary offices (with a special permit). Please inquire if interested in Building or Building with Garage as Price noted is just for Building

Overview

Property Status
For Lease
Lot Size
8,712 Sq.Ft.
MLS ID
73455840
Property Type
Commercial
Year Built
1955

Features & Amenities

Total Area
3,635 Sq.Ft.
Utilites
Public Water, Public Sewer
Lease Price
$10,000/mo
Real Estate Tax
$20,703/yr
Zoning
M128

Downloads

29 Franklin St

Schedule a Tour

I would love to help you see this beautiful home! As a full-service professional, I can help you tour. Please submit an offer, and answer questions about the buying process.

Enter a valid email

Thank you

for your interest in 29 Franklin St, Needham, MA 02494

back to page
29 Franklin St
Navigate

I'm Interested In

29 Franklin St

or
  • CallKristen Meleedy

    License #9041811

    774.406.6533
  • Browse Other

    Featured Properties

    • 29 Franklin St For Lease

      $10,000/mo

      29 Franklin St, Needham, MA 02494

      • 2 Baths
      • 3,635 Sq.Ft.
    View All Properties

    Follow Me On Instagram